Apartament duplex premium cu 4 camere | bloc boutique | standard NZEB


  • 4 Camere
  • 3 Bai
  • 152 mp construiti
Descriere

Acest apartament duplex cu 4 camere este situat in zona Dorobanti, pe o strada linistita, la etajele P+1 al unui bloc boutique S+P+2+M cu numai 3 apartamente.
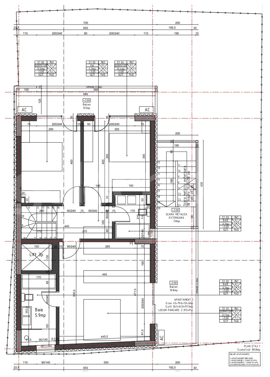
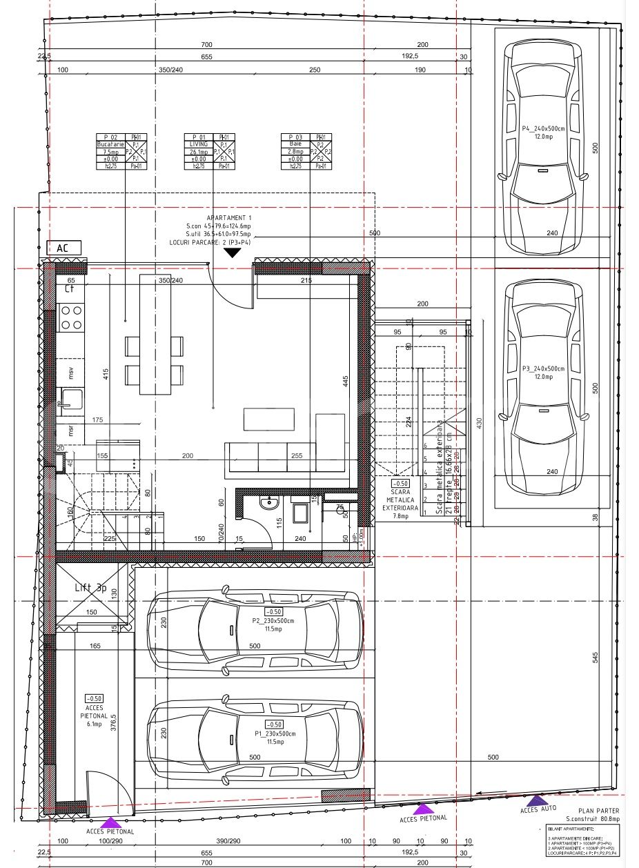
Are o suprafata totala de 152mp, 97.6mp utili, 2 terase de 19.3mp si 49mp gradina.
Parterul este compus din living spatios cu bucatarie deschisa si zona de dining si grup sanitar.
La etajul 1 este dormitorul matrimonial cu baie proprie si 2 dormitoare secundare care impart cea de-a 2-a baie. Toate camerele au iesire pe terasa.
Beneficiaza de un subsol de 33.7mp.
Include 2 locuri de parcare in curte.
Imobilul beneficiaza de o arhitectura contemporana minimalista si finisaje de inalta calitate, fiind acordata o deosebita atentie asupra detaliilor: incalzire si racire cu pompa de caldura, termoizolatii vata bazaltica, tamplarie aluminiu gama de top Reynaers, parchet Bauwerk, etc.

Floor Plans
€ 799.000
  • 2314828, Dorobanti

    Apartament duplex premium cu 4 camere | bloc boutique | standard NZEB

Similar Properties


€ 2500/luna
  • 4 Camere
  • 2 Bai
  • 220 mp

Situat in zona Dorobanti, intre Strada Beller si Calea Floreasca, acest apartament cu 4 camere se afla la etajul 6 al unui imobil S+P+6. Are o suprafata totala de 200mp si 177mp utili. Este compus... Citeste mai mult

€ 2200/luna
  • 3 Camere
  • 2 Bai
  • 130 mp

Situat in zona Dorobanti, langa Piata Dorobanti si Parcul Floreasca, acest apartament cu 3 camere se afla la etajul 1 al unui imobil P+5 finalizat in 2016. Are o suprafata totala de 130mp si 110mp... Citeste mai mult

€ 2966/luna
  • 0 Camere
  • 1 Bai
  • 0 mp

SPA?IU DE BIROURI 170 MP - HQ VICTORIEI - ETAJ 4 - 2 LOCURI PARCARE Spatiu birouri in suprafata de 170mp, etaj 4, in cladire 2S+P+5 finalizata in 2010. Spa?iu de birouri modern, complet... Citeste mai mult